medyczne.oto-lublin.pl
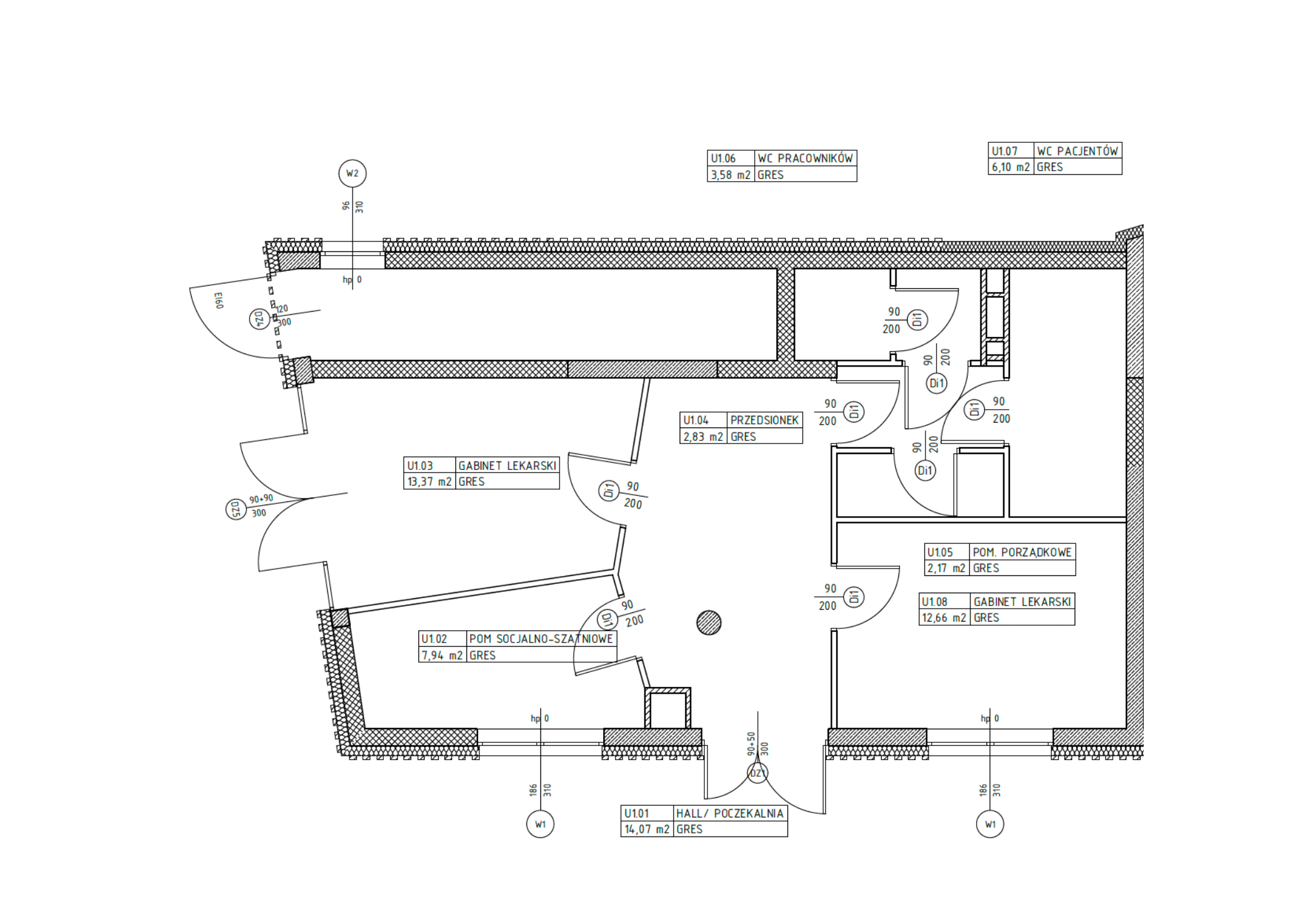
Lokal o pow. 62,75m2 składa się z:• gabinet lekarski nr 1: 13,5m2• gabinet lekarski nr 2: 12,5m2• hall/poczekalnia: 14m2• pomieszczenie porządkowe: 2m2• pomieszczenie socjalne: 8m2• przedsionek: 3m2• WC pracowników: 3,5m2• WC pacjentów: 6m2