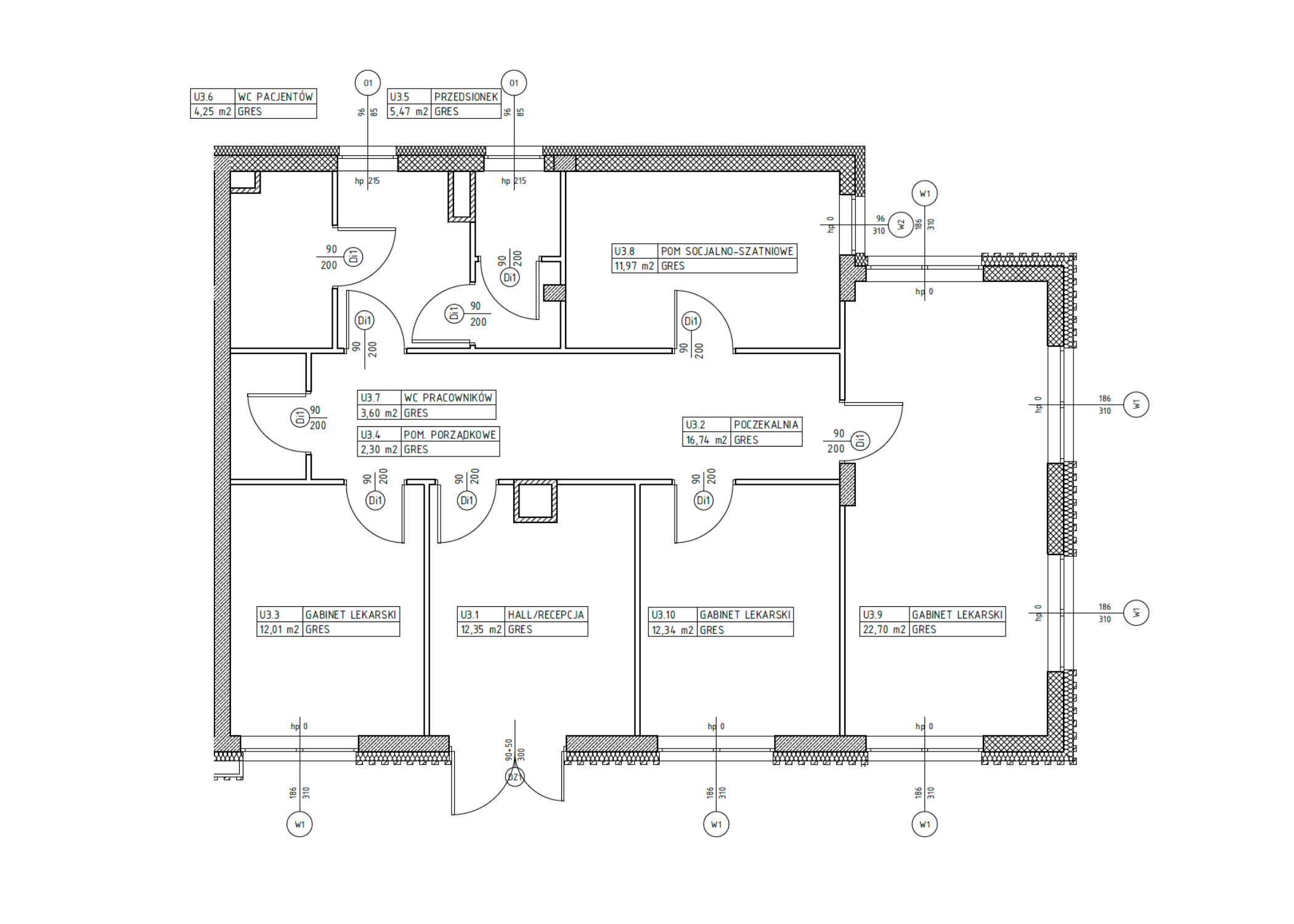
Lokal o pow. 104 m2 składa się z:
• gabinet lekarski nr 1: 12 m2
• gabinet lekarski nr 2: 12 m2
• gabinet lekarski nr 3: 12,5 m2
• gabinet lekarski nr 4: 23 m2
• hall/recepcja: 12,5 m2
• poczekalnia: 17 m2
• pomieszczenie porządkowe: 2,5 m2
• pomieszczenie socjalne: 12 m2
• przedsionek: 5,5 m2
• WC pracowników: 3,5 m2
• WC pacjentów: 4 m22












